DRINGIS 1
BENDRAS PLOTAS
281.90m2
DUŠAS/VONIA
2
GYVENEMAS PLOTAS
281.90 m2
GYVENEMAS PLOTAS
2
MIEGAMASIS
1
TERASŲ SKAIČIUS
3
VAIKŲ KAMBARIAI
2
PIRTIS
YRA
PATINKA ŠIS PROJEKTAS?
Užpildykite formą (užtruksite ~30 sekundžių) ir mes su jumis susisieksime. Atsakysime į visus iškilusius klausimus ir pateiksime asmeninį pasiūlymą.
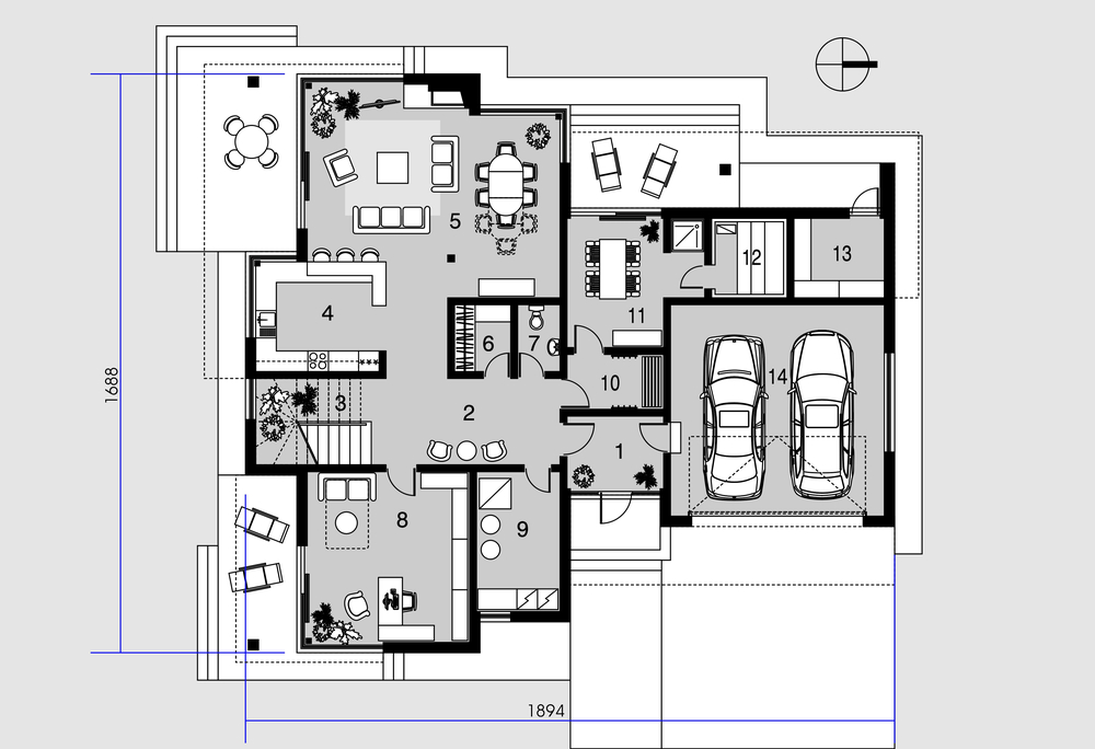
Pirmas aukštas
Plotas 179.60m2
- 1. Tambūras 5.30m2
- 2. Holas 17.60m2
- 3. Laiptinė 7.10m2
- 4. Virtuvė 11.10m2
- 5. Svetainė- valgomasis 39.50m2
- 6. Drabužinė 2.70m2
- 7. Wc 2.20m2
- 8. Darbo-svečių kambarys 21.60m2
- 9. Katilinė- skalbykla 9.80m2
- 10. Persirengimo patalpa 4.30m2
- 11. Priešpirtis- poilsio patalpa 12.50m2
- 12. Sauna 4.00m2
- 13. Ūkinis sandėlis 5.90m2
- 14. Garažas 36.00m2
Antras aukštas
Plotas 102.30m2
- 1. Holas- koridorius 12.20m2
- 2. Miegamasis 24.40m2
- 3. Drabužinė 14.00m2
- 4. Vonia 10.80m2
- 5. Patalynės patalpa 4.90m2
- 6. Vaiko kambarys 15.20m2
- 7. Vaiko kambarys 16.00m2
- 8. Wc- dušas 4.80m2
Kita informacija
- Projekto numeris KS0009
- Architektas Kazys Strazdas
- Bendras plotas 281.90m2
- Gyvenamas plotas 281.90m2
- Užstatymo plotas 116.70m2
- Pirmo aukšto plotas 179.60m2
- Antro aukšto plotas 102.30m2
- Pastato ilgis 16.88m
- Pastato plotis 18.94m
- Pastato aukštis 7.95m
- Aukštų skaičius 2
- Stogas šlaitinis
- Stogo nuolydis 5
- Terasų plotas 51.10m2
- Balkonų plotas 30.50m2
PATINKA ŠIS PROJEKTAS?
Užpildykite formą (užtruksite ~30 sekundžių) ir mes su jumis susisieksime. Atsakysime į visus iškilusius klausimus ir pateiksime asmeninį pasiūlymą.










